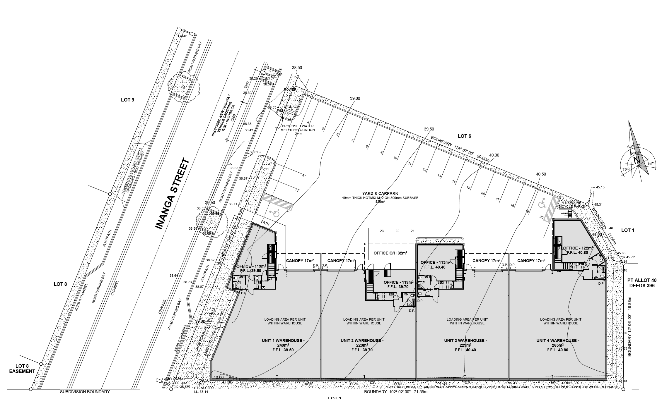
Light industrial development, Hobsonville

 
Architectural plans of the building site in Hobsonville with dimensions, parking, street names

This project covered a comprehensive range of services. As well as the typical infrastructure element we take care of, we provided a full electrical and mechanical design service, right through to PS1 documents for consent.

Architectural plans with additional details of the size of each warehouse unit in the block of warehouses
 
Kieren Smith